System okienny z ukrytym skrzydłem
AS 80US
Trójkomorowy system przeznaczony do konstruowania okien jedno- i wielokwaterowych, oferujący elastyczność projektową i wysokie parametry użytkowe. Dostępny w czterech wariantach termicznych, umożliwia precyzyjne dopasowanie izolacyjności do wymagań energetycznych budynku.
Trójkomorowa konstrukcja profili aluminiowych
Ukryte skrzydło dla minimalistycznego designu
Cztery warianty termiczne dla optymalnej efektywności
Elastyczne naroże całoszklane
AS 80US
Ukryte skrzydło dla jednolitej elewacji.
System AS 80US to rozwiązanie stworzone dla projektów, w których skrzydło okienne ma pozostać niewidoczne od zewnętrznej strony budynku. Dzięki temu, niezależnie od tego, czy okno jest stałe, czy otwierane, wszystkie elementy elewacji zachowują jednolity wygląd.
Dodatkowo AS 80US jest w pełni kompatybilny z innymi systemami aluminiowymi, zapewniając szerokie możliwości projektowe i harmonijną integrację z innymi konstrukcjami.
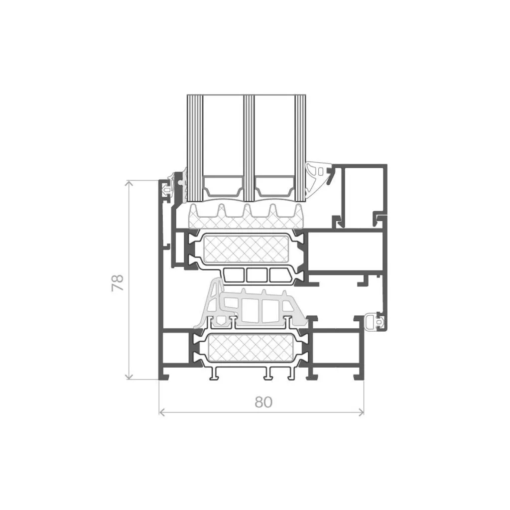
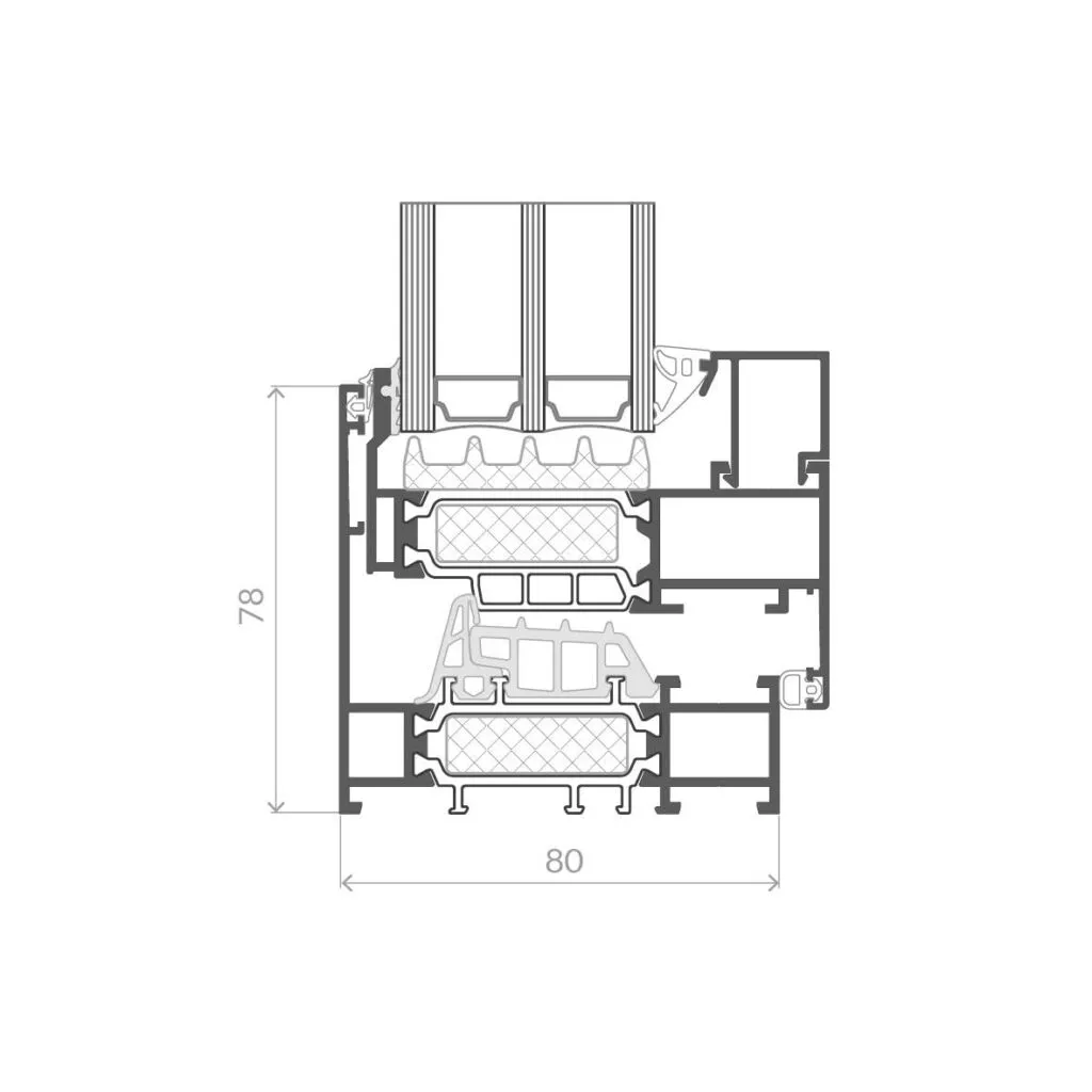
Parametry i informacje szczegółowe
| Maksymalna szerokość skrzydła | 1400 mm |
| Maksymalna wysokość skrzydła | 2700 mm |
| Maksymalna masa skrzydła | 200 kg |
| Minimalna widoczna szerokość ramy | 78 mm |
| Głębokość ramy | 80 mm |
| Izolacyjność termiczna Uw | od 0,71 W/m2K |
| Przepuszczalność powietrza | klasa 4 |
| Wodoszczelność | klasa E 2400 Pa |
| Odporność na obciążenie wiatrem | klasa C3 |
| Wytrzymałość mechaniczna | klasa 4 |
Pobierz kartę produktu
Skontaktuj się z nami!
Nasz proces to połączenie eksperckiej wiedzy, nowoczesnych technologii i indywidualnego podejścia, dzięki czemu otrzymujesz rozwiązania, które wyróżniają się jakością, funkcjonalnością i designem. Nasz zespół ekspertów pomoże Ci określić potrzeby, doradzić najlepsze rozwiązania i stworzyć koncepcję, która idealnie wpisuje się w Twój projekt.


