System izolowanych termicznie drzwi przeciwpożarowych
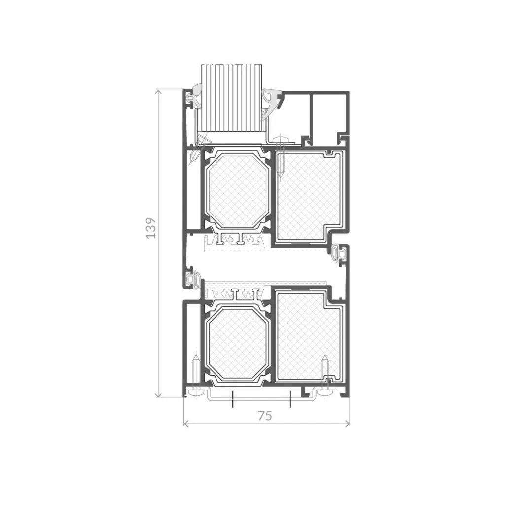
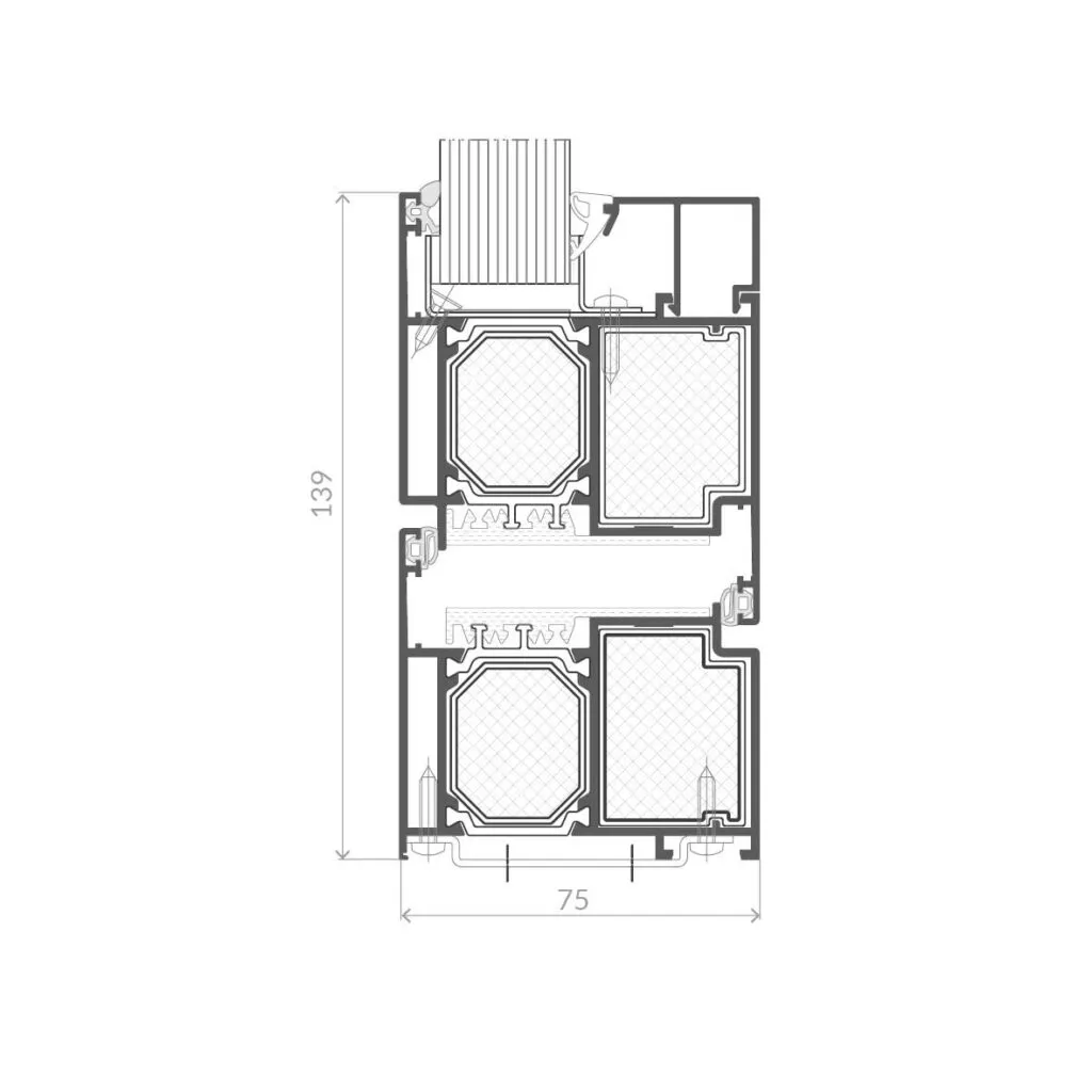
AS 75EI
System AS 75 EI to zaawansowane rozwiązanie do konstruowania termicznie izolowanych drzwi wewnętrznych i zewnętrznych o klasie odporności ogniowej EI 30 oraz EI 60. Umożliwia montaż w zabudowie witrynowej, ścianach systemowych AS 75 EI oraz w ścianach gipsowo-kartonowych, zapewniając bezpieczeństwo, trwałość i szerokie możliwości adaptacyjne.
Innowacyjne wkłady ogniochronne Perliterm
Wkłady Perliterm – nowoczesna ochrona ogniowa
Nowatorskie wkłady ogniochronne
Innowacyjne uszczelki pęczniejące
AS 75EI
Wszechstronny i zoptymalizowany system przeciwpożarowy.
System wykorzystuje te same kształtowniki i akcesoria co klasyczny system okienno-drzwiowy AS 75, co zapewnia pełną optymalizację profili i komponentów. Umożliwia zastosowanie wielowariantowych szyb renomowanego koncernu Vetrotech Saint-Gobain oraz okuć drzwiowych znanych marek, takich jak Wala, Master, Dr Hahn, Wilka, MC Aluhard, Eco Schulte czy Geze.
Na bazie systemu można konstruować przeciwpożarowe drzwi i okna techniczne z możliwością integracji doświetli i naświetli. Dodatkowo system pozwala na zastosowanie ciepłego panelu nieprzeziernego w drzwiach oraz budowę ścianek przeciwpożarowych, oferując kompleksowe rozwiązanie dla wymagających projektów.
Parametry i informacje szczegółowe
| Maksymalna wysokość skrzydła | 2800 mm |
| Maksymalna szerokość skrzydła | 1320 mm |
| Maksymalna masa skrzydła | 220 kg |
| Maksymalna wysokość ścian przeciwpożarowych | 4800 mm |
| Grubość szyb pojedynczych w konstrukcjach EI 30 | 15 mm, 16 mm |
| Zakres grubości pakietów szybowych w konstrukcjach EI 30 | 34-56 mm |
| Izolacyjność termiczna Ud | od 1,2 W/m2K |
| Przepuszczalność powietrza | klasa 2 |
| Wodoszczelność | klasa 7A |
| Odporność na obciążenie wiatrem | klasa C2 |
Pobierz kartę produktu
Skontaktuj się z nami!
Nasz proces to połączenie eksperckiej wiedzy, nowoczesnych technologii i indywidualnego podejścia, dzięki czemu otrzymujesz rozwiązania, które wyróżniają się jakością, funkcjonalnością i designem. Nasz zespół ekspertów pomoże Ci określić potrzeby, doradzić najlepsze rozwiązania i stworzyć koncepcję, która idealnie wpisuje się w Twój projekt.


