System izolowanych termicznie drzwi przeciwpożarowych
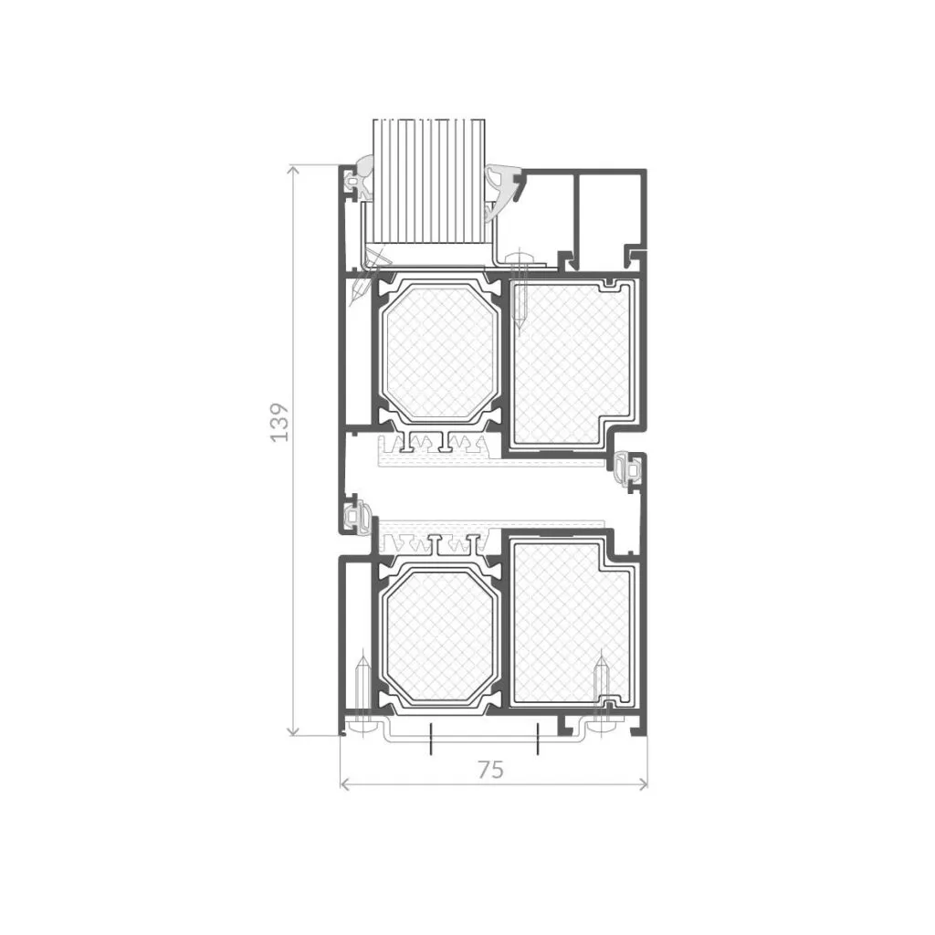
AS 75EI
Trzykomorowy system AS 75 EI został zaprojektowany do konstrukcji wewnętrznych i zewnętrznych drzwi o klasie odporności ogniowej EI 30 oraz EI 60.
Perliterm – opatentowane wkłady ogniochronne
Innowacyjne wkłady ogniochronne w osnowie tworzywowej
Praktyczne szklenie jednostronne
Innowacyjne uszczelki pęczniejące
AS 75EI
Optymalizacja i wszechstronność w konstrukcjach przeciwpożarowych.
System AS 75 EI zapewnia pełną optymalizację profili, dzięki zastosowaniu tych samych kształtowników i akcesoriów, co w klasycznym systemie okienno-drzwiowym AS 75.
Rozwiązanie umożliwia konstruowanie przeciwpożarowych drzwi i okien technicznych z możliwością zastosowania doświetli i naświetli. Dodatkowo system pozwala na wykorzystanie ciepłego panelu nieprzeziernego w drzwiach oraz tworzenie ścianek przeciwpożarowych, zapewniając najwyższe standardy bezpieczeństwa i estetyki.
Parametry i informacje szczegółowe
| Maksymalna wysokość skrzydła | 2800 mm |
| Maksymalna szerokość skrzydła | 1320 mm |
| Maksymalna masa skrzydła | 220 kg |
| Maksymalna wysokość ścian przeciwpożarowych | 4800 mm |
| Grubość szyb pojedynczych w konstrukcjach EI 30 | 15 mm, 16 mm |
| Zakres grubości pakietów szybowych w konstrukcjach EI 30 | 34-56 mm |
| Maksymalna wysokość skrzydła | 2500 mm |
| Maksymalna szerokość skrzydła | 1320 mm |
| Maksymalna masa skrzydła | 220 kg |
| Maksymalna wysokość ścian przeciwpożarowych | 4000 mm |
| Grubość szyb pojedynczych w konstrukcjach EI 60 | 27 mm |
| Izolacyjność termiczna Ud | od 1,2 W/m2K |
| Przepuszczalność powietrza | klasa 2 |
| Wodoszczelność | klasa 7A |
| Odporność na obciążenie wiatrem | klasa C2 |
| Klasa odporności ogniowej | EI 30, EI 60 |
| Dymoszczelność | klasa Sa, S200 |
Pobierz kartę produktu
Skontaktuj się z nami!
Nasz proces to połączenie eksperckiej wiedzy, nowoczesnych technologii i indywidualnego podejścia, dzięki czemu otrzymujesz rozwiązania, które wyróżniają się jakością, funkcjonalnością i designem. Nasz zespół ekspertów pomoże Ci określić potrzeby, doradzić najlepsze rozwiązania i stworzyć koncepcję, która idealnie wpisuje się w Twój projekt.


