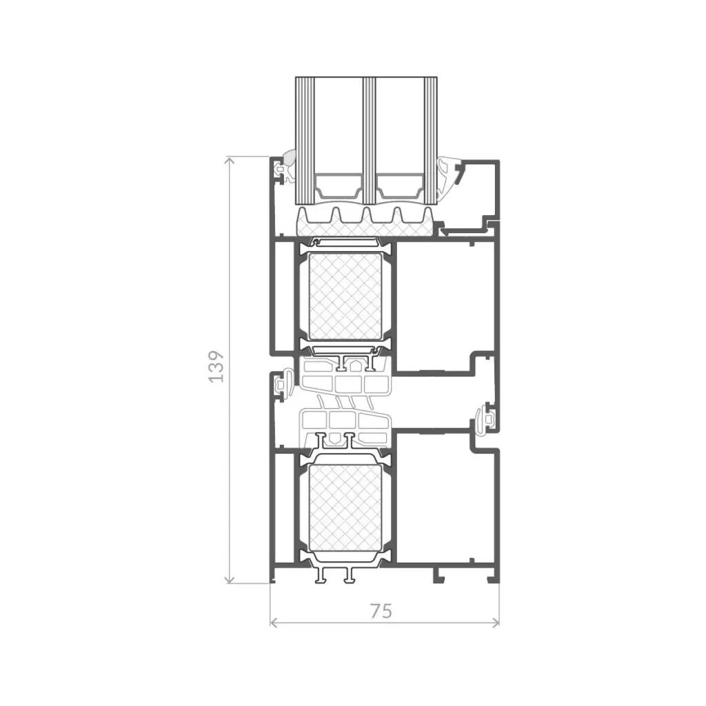
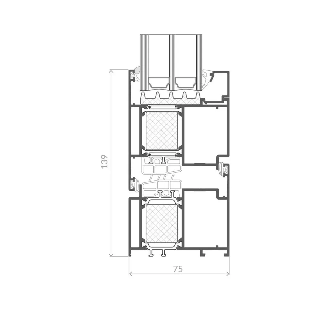
Trójkomorowy system okienno-drzwiowy
AS 75 drzwi
System przeznaczony do tworzenia drzwi z izolacją termiczną, które zachowują stabilność nawet przy dużych różnicach temperatur między wnętrzem a otoczeniem. Dzięki zastosowaniu przekładek ANTY-BI-METAL skutecznie zapobiega odkształceniom, zapewniając trwałość i niezawodność konstrukcji.
Trójkomorowa konstrukcja profili
Dopasowanie do różnych warunków
Elastyczność w doborze zawiasów
Innowacyjny próg i aluminiowa podwalina
AS 75
Nowoczesny design i zaawansowana izolacja.
Minimalistyczne wzornictwo systemu AS 75 wpisuje się w najnowsze trendy architektoniczne.
Trzykomorowa konstrukcja spełnia rygorystyczne normy dotyczące izolacyjności termicznej i akustycznej, dzięki zastosowaniu nowoczesnych izolatorów termicznych, zapewniając energooszczędność i komfort użytkowania.
Parametry i informacje szczegółowe
| Maksymalna wysokość skrzydła | 3000 mm |
| Maksymalna szerokość skrzydła | 1400 mm |
| Maksymalna masa skrzydła | 280 kg |
| Głębokość profili drzwiowych | 75 mm |
| Zakres szklenia | 17-57 mm |
| Minimalna widoczna szerokość ramy | 69 mm |
| Izolacyjność termiczna Ud | od 0,93 W/m2K |
| Przepuszczalność powietrza | klasa 4 |
| Wodoszczelność | klasa E1200 |
| Odporność na obciążenie wiatrem | klasa C2 |
Skontaktuj się z nami!
Nasz proces to połączenie eksperckiej wiedzy, nowoczesnych technologii i indywidualnego podejścia, dzięki czemu otrzymujesz rozwiązania, które wyróżniają się jakością, funkcjonalnością i designem. Nasz zespół ekspertów pomoże Ci określić potrzeby, doradzić najlepsze rozwiązania i stworzyć koncepcję, która idealnie wpisuje się w Twój projekt.


