System drzwiowy
AS 100
System AS 100 to zaawansowane, trzykomorowe rozwiązanie stworzone do budowy termicznie izolowanych witryn oraz drzwi. Umożliwia zastosowanie szyb zespolonych lub paneli nieprzeziernych, zapewniając trwałość, energooszczędność i nowoczesny design.
Wszechstronność otwierania
Elastyczność w doborze zawiasów
Efektywne wykorzystanie akcesoriów
Zintegrowana aluminiowa podwalina
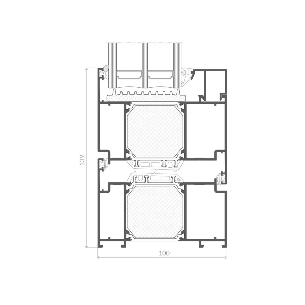
AS 100
Wysoka izolacyjność i elastyczność konstrukcyjna.
System zapewnia doskonałą izolację termiczną i akustyczną, jednocześnie gwarantując prostotę montażu. Dostępny w trzech wariantach termicznych, umożliwia łatwe dopasowanie konstrukcji do wymaganych parametrów cieplnych.
AS 100 wykorzystuje dwa typy profili – podstawowe i wzmocnione, co zwiększa jego wytrzymałość i trwałość.
Parametry i informacje szczegółowe
| Maksymalna wysokość skrzydła | 3000 mm |
| Maksymalna szerokość skrzydła | 1400 mm |
| Maksymalna masa skrzydła | 280 kg |
| Głębokość profili drzwiowych | 100 mm |
| Zakres szklenia | 37-68 mm |
| Złożenie ościeżnicy i skrzydła | 139 mm |
| Izolacyjność termiczna Uw | od 0,7 W/m²K |
| Przepuszczalność powietrza | klasa 4 |
| Wodoszczelność | E750 Pa |
| Odporność na obciążenie wiatrem | klasa C5 |
Skontaktuj się z nami!
Nasz proces to połączenie eksperckiej wiedzy, nowoczesnych technologii i indywidualnego podejścia, dzięki czemu otrzymujesz rozwiązania, które wyróżniają się jakością, funkcjonalnością i designem. Nasz zespół ekspertów pomoże Ci określić potrzeby, doradzić najlepsze rozwiązania i stworzyć koncepcję, która idealnie wpisuje się w Twój projekt.


